Bezaubernde 4,5 Zimmerwohnung mit großem Balkon, Garage, 2 Keller in Ravensburg

Objektart Wohnung / Kauf
Standort 88212 Ravensburg
Wohnfläche 103 m²
Gesamtfläche 103 m²
Baujahr 1972
Lagebeschreibung Die ansprechende Wohnung befindet sich in der Wohnanlage Schützenstrasse 100, in Ravensburg in der Nordstadt von Ravensburg. Bitte beachten, Besichtigungen sind nur über uns, dem Makler möglich, weil die Eigentümerin nicht in Ravensburg wohnt, sie ist selten da. Der Energieausweis ist bei der Hausverwaltung beantragt.
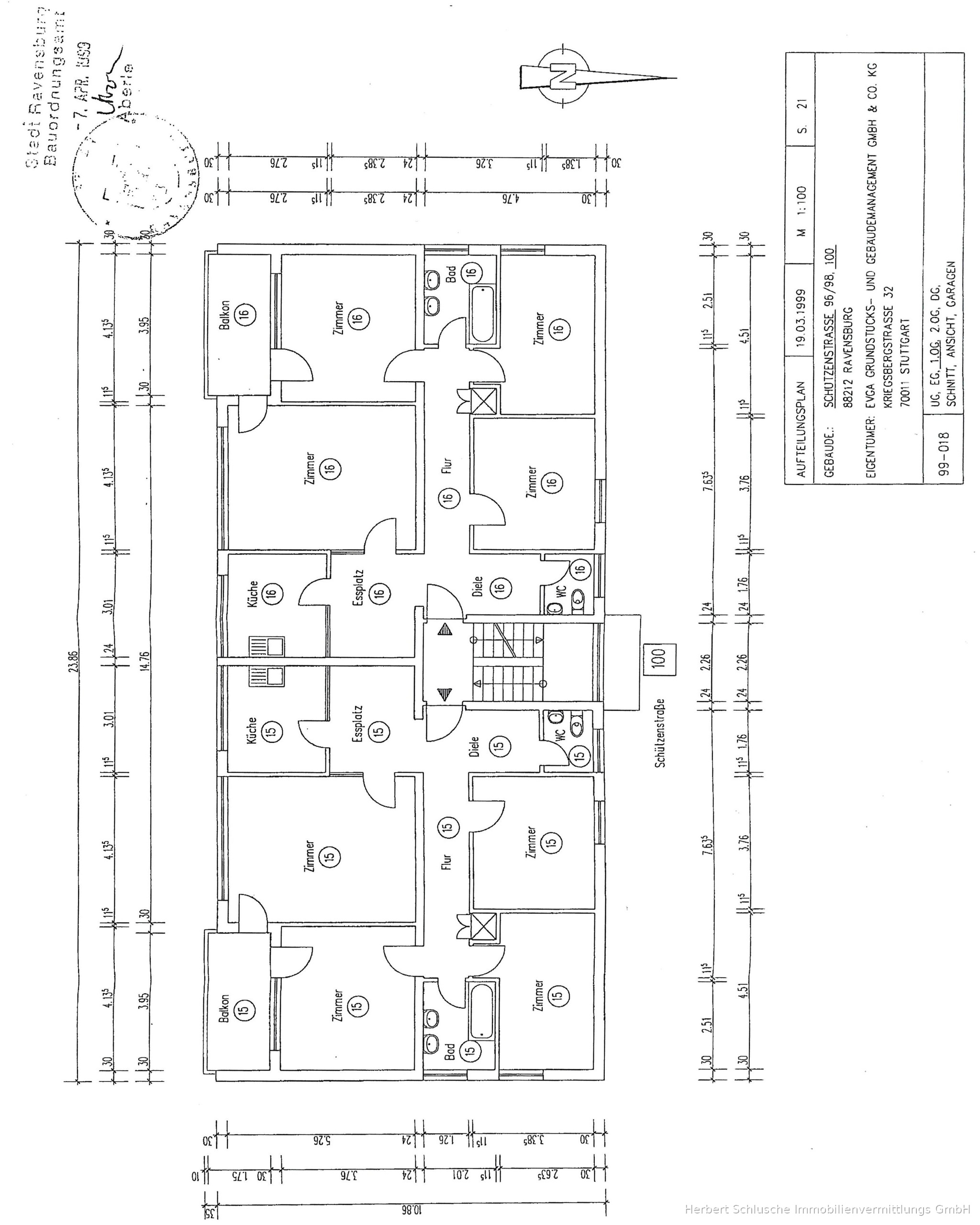
Anzahl Zimmer 4.5
Kaufpreis 389.000 €
Objektbeschreibung

Unser Immobilienangebot, eine ganz bezaubernde einladende lichte große 4,5 Zimmer Eigentumswohnung in einem Mehrfamilienhaus mit 6 Wohnungen in Ravensburg. Auf dem Dach des Mehrfamilienhauses befindt sich eine von der Eigentümergemeinschaft finazierte Photovoltaikanlage mit einer ansehnlichen Einspeisvergütung auf die einzelenen Wohnungseigentümer. Zudem ist das Mehrfamilienhaus super isoliert mit dickem Vollwärmeschutz an der Außenwand. Von dem Flur in L Form erschließen sich der Garderobenbereich, die Gästetoilette, 3 Schlafräume - das Elternschlafzimmer mit Balkonzugang, 1 Bad, ein großes Wohnzimmer mit Balkonzugang, ein Esszimmer und eine Küche mit Einbauküchenmöbemöbel. Die Wohnung ird mit einer schönen Einbauküche verkauft. Die Wohnung ist möbeliert, auf Wunsch kann der Erwerber/können die Erwerber Möbelstücke vom Verkäufer übernehmen. Ein großer Sonnenbalkon lädt Sie zum Entspannen und Verweilen ein. Als Stauraum stehen Ihnen 2 große lichte Kellerräume und 1 Dachbodenabteil zur Verfügung. Ihr Auto findet Platz in einer einer geschlossene Garage mit elektrischem Tor. Hier ist genügend Platz und Raum für eine große Familie. Den Energieausweis haben wir bei der Hausverwaltung beantragt. Die ansprechende Wohnung befindet sich in der Wohnanlage Schützenstrasse 100 in Ravensburg, in der Nordstadt von Ravensburg. Besichtigungen sind nur mit uns, dem Makler möglich, die Eigentümerin wohnt nicht in Ravensburg, sie ist selten da.

Haben Sie Interesse?

Rufen Sie mich an: +49 8375 929 1470

Direkt per E-Mail anfragen
Sonstiges
Auf dem Dach des Mehrfamilienhauses befindet sich eine von der Eigentümergemeinschaft finanzierte Photovoltaikanlage mit einer ansehnlichen Einspeisvergütung auf die einzelnen Wohnungseigentümer. Somit senkt der Ertrag aus der Photovoltaikanlage Ihre Nebenkosten für die Wohnung. ZUdem ist das Mehrfamilienhaus super isoliert mit dickem Vollwärmeschutz an der Außenwand. Wir bieten Ihnen eine einladende, lichte, bezaubernde geräumige 4,5 Zimmerwohnung mit ganz viel Stauraum an. Eine Eigentumswohnung mit ganz viel Stauraum, dem/den neuen Eigentümern stehen 2 Kellerräume und ein Dachbodenanteil zur Verfügung. Zur Immobilie gehört eine geschlossene Garage mit elektrischem Garagentor. Auf dem großen Grundstück gibt es Besucherparkplätze. Die Eigentumswohnung ist mit guter Infdrstruktuer umgeben, fußläufig erreichen Sie Supermärlte für Ihren Einkauf.